Видеокурс направлен на быстрое ознакомление с программным обеспечением Revit и понимание принципов работы.
Он будет полезен для тех, кто хочет буквально за несколько часов понять механику работы и пройти проект от идеи до оформленных чертежей. Также актуален, если срочно нужно начать работать в BIM. Например, если утром заказчик ждет проект в BIM, а вы еще не установили программу — курс поможет закрыть задачу.
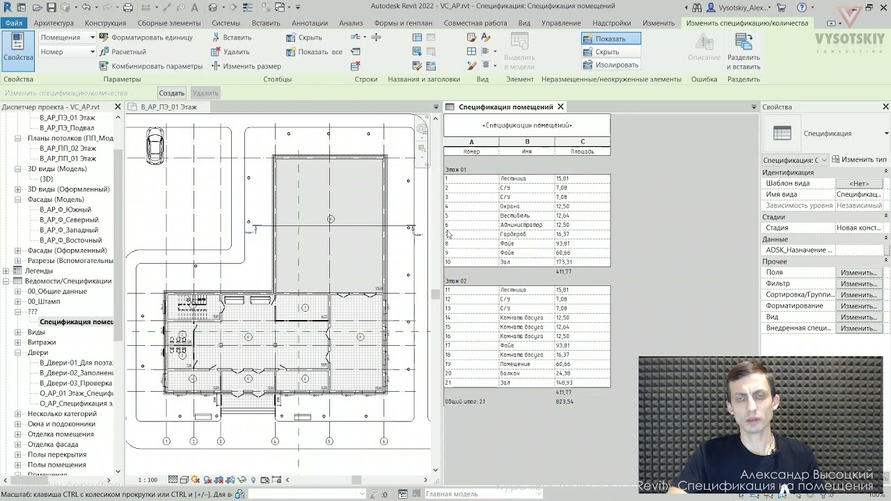
Спецификации
Спецификация на помещения
Новости и оперативная информация о курсах — на нашем Telegram-канале.
Выберите видеосервис:
https://rutube.ru/play/embed/3e90aa466cdb68990304729d1c4cb5f8
Ближайшие события отрасли
Даты Название мероприятия Организатор Тип события Формат Место Стоимость
05 мая
Вебинар. Инструмент "Немоделируемые элементы": шаг на пути к автоматической спецификации
Autodesk Revit имеет ограничения по моделированию и учёту некоторых расходных материалов (краска труб, крепления воздуховодов и т.п.). Инструм...
ПИК Digital
Вебинар
онлайн
Москва
бесплатно
07 мая
Вебинар. TDMS Фарватер: от классики до Web
Приглашаем на вебинар «TDMS Фарватер: от классики до Web» — поговорим о том, как система эволюционировала и адаптировалась к требованиям современного ...
СиСофт Омск
Вебинар
онлайн
Омск
бесплатно
Полный список интересных событий доступен на странице отраслевого календаря