Autodesk Revit: Слаботочные сетиНачальный

Проектирование слаботочных сетей на основании шаблона, разработанного компанией RUBEZH: размещение компонентов, подсчет кабелей, расчет емкости аккумуляторных батарей и многое другое.

Курс разработан по заказу научно-производственной компании RUBEZH, одного из лидеров отрасли систем безопасности России и СНГ.
Длительность: 2 часа 18 минут

Формирование систем

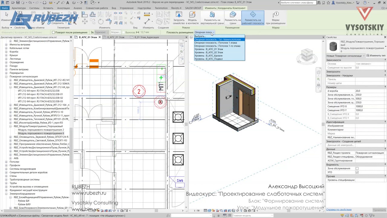
Модульное пожаротушение

Новости и оперативная информация о курсах — на нашем Telegram-канале
Выберите видеосервис:
https://rutube.ru/play/embed/fe245ae87ed64bbceee516c4fa39d828

Формирование системы пожаротушения на основе блока автоматики и порошковых модулей.


Ближайшие события отрасли

Даты Название мероприятия Организатор Тип события Формат Место Стоимость
27–30 апреля
БИМАК. Международная научно-практическая конференция «ИНФОРМАЦИОННОЕ МОДЕЛИРОВАНИЕ В ЗАДАЧАХ СТРОИТЕЛЬСТВА И АРХИТЕКТУРЫ»
Место проведения и участники Конференция пройдет в главном корпусе ФГБОУ ВО «Санкт-Петербургский государственный архитектурно-строительный университет...
СПбГАСУ
Конференция, Вебинар
офлайн, онлайн
бесплатно
28 апреля
Вебинар. Практическое применение nanoCAD BIM Строительство при проектировании здания гражданского назначения
Регистрируйтесь на вебинар и узнайте о том, как эффективно использовать инструменты редактора параметрического оборудования для получения пружинного б...
Центр Программных решений
Вебинар
онлайн
Санкт-Петербург
бесплатно
28 апреля
Вебинар. Проектирование и оформление чертежа детали в nanoCAD Механика PRO на операционной системе Linux
В ходе вебинара мы создадим 3D-модель и её чертеж в nanoCAD Механика PRO на платформе Linux РЕД ОС. В рамках вебинара рассмотрим пошаговый процесс: ...
Магма компьютер
Вебинар
онлайн
Омск
бесплатно
29 апреля
Вебинар. nano360 — новая облачная СОД как центр управления проектными данными
Проектные данные разбредаются по папкам, версии множатся, замечания тонут в переписке? На вебинаре покажем, как единое хранилище и согласование в реа...
Макссофт-24
Вебинар
онлайн
Красноярск
бесплатно
29 апреля
Открытая экспертная сессия Vitro. Концепция СОД 2.0
Команда «Витро Софт» запускает «Открытые экспертные сессии» и приглашает к открытому диалогу о будущем цифровых решений! Первая встреча состоится уже...
Витро Софт
Вебинар
онлайн
Москва
бесплатно
30 апреля
Вебинар. nanoCAD BIM Строительство и Конструкции PS: плюсы и минусы 3D и 2D армирования
Уважаемые коллеги, приглашаем инженеров-конструкторов раздела КЖ на практический вебинар, посвящённый армированию железобетонных конструкций в nanoCA...
Buildsoft
Вебинар
онлайн
Ярославль
бесплатно
05 мая
Вебинар. Инструмент "Немоделируемые элементы": шаг на пути к автоматической спецификации
Autodesk Revit имеет ограничения по моделированию и учёту некоторых расходных материалов (краска труб, крепления воздуховодов и т.п.). Инструм...
ПИК Digital
Вебинар
онлайн
Москва
бесплатно
Полный список интересных событий доступен на странице отраслевого календаря