Autodesk Revit Семейства: Продвинутый уровеньСредний

Семейства — это объекты, наполняющие Revit-проект. Если вы умеете создавать и редактировать семейства, то можете настроить марки, создать двери, окна, колонны, инженерные элементы для вашего проекта.

Курс поможет вам освоить редактор семейств. Вы научитесь создавать свои объекты всех категорий: архитектурные, несущие и инженерные элементы. Мы отдельно рассмотрели создание семейств для архитекторов, конструкторов и инженеров. Это поможет закрепить теоретический материал и сразу сделать полезный в работе объект.

Длительность: 8 часов 28 минут

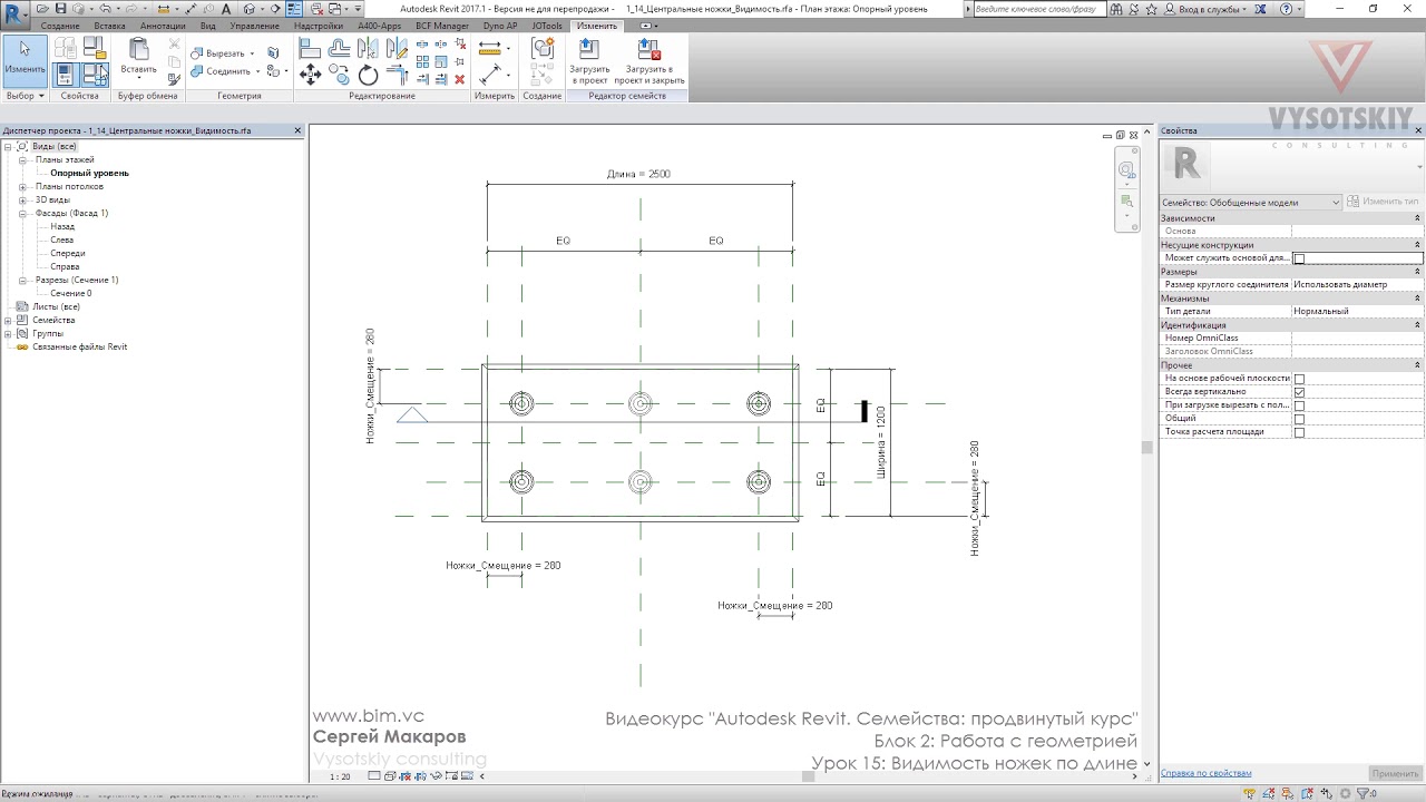
Работа с геометрией

Видимость ножек по длине

Новости и оперативная информация о курсах — на нашем Telegram-канале
Выберите видеосервис:
https://rutube.ru/play/embed/3a11102245fe4e640f6dd8f5bead42d3

Ближайшие события отрасли

Даты Название мероприятия Организатор Тип события Формат Место Стоимость
11 февраля
Вебинар. "Использование 3D-модуля для разработки архитектурных элементов в nanoCAD BIM Строительство"
Путь от PDF до BIM — на практическом вебинаре "Использование 3D-модуля для разработки архитектурных элементов в nanoCAD BIM Строительство". ...
Макссофт-24
Вебинар
онлайн
Москва
бесплатно
11 февраля
Вебинар. Платформа nanoCAD 26. Обзор возможностей
Хотите уверенно ориентироваться в программе и работать быстрее: от настройки интерфейса до выпуска документации? На вебинаре разберем актуальную вер...
Академия BIM
Вебинар
онлайн
Москва
бесплатно
11 февраля
Прямой эфир: Проектирование отопления и вентиляции в Autodesk Revit.
Уважаемые коллеги! Приглашаем вас на бесплатный практический вебинар, посвященный проектированию в Autodesk Revit ОВ. Программа мероприятия: - Знаком...
Билдсофт
Вебинар
онлайн
Москва
бесплатно
12 февраля
Конференция. Сила четырёх-2026
Конференция «CИЛА ЧЕТЫРЁХ» — значимое для рынка событие, на котором представители государства, банков, бизнеса и экспертов соберутся вместе, чтобы обс...
CORE.XP, РСПП
Конференция
офлайн
Москва
платно
12–15 февраля
BIM DAY + SYNERGY BIM TOUR
Есть запись
Мероприятие объединяет крупную строительную выставку с ведущими спикерами России и поездку на горноложный курорт Шерегеш, в рамках которой преду...
Synergy Systems
Тур / выезд / экскурсия
офлайн, онлайн
Новосибирск
бесплатно, платно
12 февраля
Вебинар. Лимитированные затраты на текущий и капитальный ремонт. Что включать и как оплачивать?
Вебинар проводится в рамках экспресс-курса "Определение стоимости текущего и капитального ремонта: учет коэффициентов и лимитированных затрат&quo...
Университет Минстроя НИИСФ РААСН
Вебинар
онлайн
бесплатно
12 февраля
Вебинар. Комплексный подход к озеленению в проектировании
На вебинаре разберём:    Тренды городского озеленения на квартальной застройке    Типовые задачи и проблемы проектирования озелен...
ПИК BIMTeam
Вебинар
онлайн
Москва
бесплатно
12 февраля
Вебинар «Новый инструмент "Отделка". Выпуск плана полов и специфицирование в Model Studio CS Строительные решения»
Программа вебинара: • Обзор нового инструмента «Отделка»; • Моделирование многослойных полов и их отделки; • Выпуск плана полов с штриховками и усл...
TBS Software
Вебинар
онлайн
Москва
бесплатно
16–17 февраля
Конгресс по цифровизации и устойчивому развитию горнодобывающей отрасли
NEDRA 4.0 - ежегодный Конгресс по цифровизации и устойчивому развитию горнодобывающей отрасли России. На конгрессе соберутся топ-менеджеры ведущих ко...
СБ Проект
Конференция
офлайн
Санкт-Петербург
бесплатно
16 февраля
Вебинар. Model Studio CS Трубопроводы. Тепловые камеры “от и до”
Для тех, кто работает с проектированием тепловых сетей и камер, рекомендуем обратить внимание на наш вебинар. На вебинаре будет последовательно разоб...
СиСофт Омск
Вебинар
онлайн
Омск
бесплатно
18 февраля
Онлайн-показ. Знакомство с Vitro AIR
Запускаем серию онлайн-показов по Vitro AIR! Что вас ждет?     Погружение в функционал Vitro AIR     Знаком...
Vitro-CAD
Вебинар
онлайн
Москва
бесплатно
Полный список интересных событий доступен на странице отраслевого календаря