Autodesk Revit Семейства: Продвинутый уровеньСредний

Семейства — это объекты, наполняющие Revit-проект. Если вы умеете создавать и редактировать семейства, то можете настроить марки, создать двери, окна, колонны, инженерные элементы для вашего проекта.

Курс поможет вам освоить редактор семейств. Вы научитесь создавать свои объекты всех категорий: архитектурные, несущие и инженерные элементы. Мы отдельно рассмотрели создание семейств для архитекторов, конструкторов и инженеров. Это поможет закрепить теоретический материал и сразу сделать полезный в работе объект.

Длительность: 8 часов 28 минут

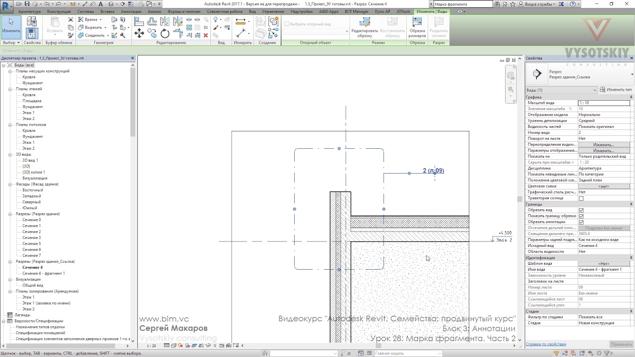
Аннотации

Марка фрагмента. Часть 2

Новости и оперативная информация о курсах — на наших каналах в Макс и Telegram
Выберите видеосервис:
https://rutube.ru/play/embed/aeb48086257dd59d8a47621e447ca514

Ближайшие события отрасли

Даты Название мероприятия Организатор Тип события Формат Место Стоимость
26 мая
Вебинар. Цифровое управление PM & FM в Mercury Properties
Ждем вас 26 мая в 11:00 (мск) на онлайн-встрече, во время которой крупнейший инвестиционный холдинг в секторе коммерческой недвижимости Mercur...
Академия BIM
Вебинар
онлайн
Москва
бесплатно
26 мая
Вебинар. Умный и быстрый. Проверяем модель в CADLib Модель и Архив с ИИ-инструментом NSR Specification
Приглашаем на вебинар по NSR Specification: инструмент проверки проектной документации и цифровых моделей с ИИ. Обзор функций, примеры проверки коллиз...
Нормасофт
Вебинар
онлайн
Санкт-Петербург
бесплатно
27 мая
Вебинар. Определение крена дымохода Березовской ГРЭС в nanoCAD Облака точек по данным лазерного сканирования
27 мая в 9:00 (мск) присоединяйтесь к вебинару по определению крена дымохода Березовской ГРЭС в nanoCAD Облака точек по данным лазерного скани...
Макссофт-24
Вебинар
онлайн
Красноярск
бесплатно
28 мая
Онлайн-стрим. Экосистема охраны труда в одном решении: как обеспечить комплексную производственную безопасность
Недостаточная проработка мер безопасности, ошибки в оформлении, нарушение сроков согласования – это не просто бюрократия. Это прямые риски травм, штра...
Макссофт-24
Вебинар
онлайн
Красноярск
бесплатно
28 мая
Вебинар. Что нового в nanoCAD Стройплощадка 26
Приглашаем на вебинар «Что нового в nanoCAD Стройплощадка 26»   Если вы занимаетесь разработкой ПОС и ППР, проектируете стройгенпланы или только плани...
СиСофт Омск
Вебинар
онлайн
Омск
бесплатно
28 мая
Вебинар. Как BIM Inspector предотвращает ошибки в ЦИМ (IFC) для прохождения АГР и МГЭ
В Экосистеме BIMTeam расширяется функционал BIM Inspector — теперь он обеспечивает контроль качества цифровых информационных моделей (ЦИМ) в ф...
ПИК Digital
Вебинар
онлайн
Москва
бесплатно
28 мая
Стратегическая экспертная сессия для инженеров-конструкторов
Приглашаем Вас принять участие в вечерней стратегической экспертной сессия для инженеров-конструкторов, которая пройдет 28 мая 2026 в уютном и очень у...
ПСС
Конференция
офлайн
Санкт-Петербург
бесплатно
29 мая
Конференция. Искусственный Интеллект в проектировании и строительстве
Конференция — площадка для презентации ИИ-решений Вашей компании! Будем рады видеть представителей Вашей компании в качестве спикеров/партнёров, либо ...
CRED business event
Конференция
онлайн
Москва
бесплатно
Полный список интересных событий доступен на странице отраслевого календаря