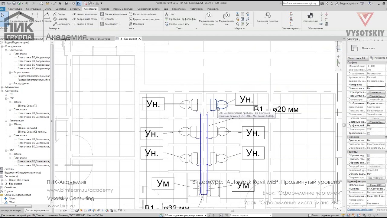
Autodesk Revit MEP: Продвинутый уровеньСредний

Продвинутый курс по построению трубопроводных систем разделов ОВ и ВК в Revit на основе архитектурной модели. Рассматриваются основные настройки программы, моделирование систем, а также формирование документации и спецификаций.
Длительность: 10 часов 58 минут

Оформление чертежей

Оформление листа План ХВС

Новости и оперативная информация о курсах — на нашем Telegram-канале
Выберите видеосервис:
https://rutube.ru/play/embed/956aec1b846052bcb3baaa2bc05afb0b

Ближайшие события отрасли

Даты Название мероприятия Организатор Тип события Формат Место Стоимость
21–23 апреля
Build Ural Выставка строительных, отделочных материалов и инженерного оборудования
Build Ural – ключевое событие строительной отрасли Урала, объединяющее производителей и поставщиков материалов, оборудования для строительства, декори...
MVK (Международная Выставочная Компания)
Выставка, Конференция
офлайн
Екатеринбург
бесплатно
22 апреля
Вебинар. Применение шаблона стального каркаса для ускорения получения 3D-модели в nanoCAD BIM Строительство
Приглашаем на вебинар ГИП-ов, САПР-, BIM-менеджеров, инженеров-проектировщиков и конструкторов по применению шаблона стального каркаса для ускорения п...
Макссофт-24
Вебинар
онлайн
Красноярск
бесплатно
22 апреля
Вебинар. ПОС-мотрим ППР-оект моста в nanoCAD Стройплощадка и CADLib Модель и Архив
Уже в следующую среду мы приглашаем вас посмотреть как реализуется бесшовная связь между разработкой ПОС и единой информационной моделью  на...
СиСофт Казань
Вебинар
онлайн
Казань
бесплатно
22 апреля
Вебинар. nanoCAD для геодезистов
Вебинар, посвященный геодезии! В этот раз разберём, как работать с облаками точек в среде nanoCAD без лишних конвертаций. Научимся выявлять отклонени...
ПСС
Вебинар
онлайн
Санкт-Петербург
бесплатно
22 апреля
Онлайн-показ. Знакомство с Vitro-CAD. Ответы на вопросы
Присоединяйтесь к серии онлайн-показов по Vitro-CAD! На встречах вас ждет экскурсия по возможностям и особенностям нашей системы Vitro-CAD, которая у...
Vitro-CAD
Вебинар
онлайн
Москва
бесплатно
23 апреля
Онлайн-конференция. НЕЛИНЕЙНОСТЬ. Запуск новой экосистемы
Пришло время сообщить, что компания «МИДАС» начинает новую главу как полностью Российский разработчик. 23 апреля состоится масштабная онлайн-конферен...
MIDAS
Вебинар
онлайн
Москва
бесплатно
23 апреля
Мастер-класс. Настройка и применение шаблонов оформления в nanoCAD BIM Вентиляция
Для инженеров - проектировщиков вентиляционных систем. Мы анонсируем мастер-класс, на котором вы прокачаете и закрепите свои навыки в работе с nanoCA...
СиСофт Казань
Вебинар
онлайн
Казань
бесплатно
23 апреля
Прямой эфир. Разработка раздела КМ в среде Model Studio CS Строительные решения
Уважаемые коллеги! Приглашаем вас на бесплатный практический вебинар, посвященный разработке раздела КМ в среде Model Studio CS Строительные решения. ...
Buildsoft
Вебинар
онлайн
Ярославль
бесплатно
24 апреля
Конференция. ТИМИ Санкт-Петербург 2026
Конференция ТИМИ Санкт-Петербург 2026, организованная компаниями TBS и «СиСофт Девелопмент», будет посвящена практическому опыту и прикладным задачам ...
СиСофт, TBS Software
Конференция
офлайн
Санкт-Петербург
бесплатно
27–30 апреля
БИМАК. Международная научно-практическая конференция «ИНФОРМАЦИОННОЕ МОДЕЛИРОВАНИЕ В ЗАДАЧАХ СТРОИТЕЛЬСТВА И АРХИТЕКТУРЫ»
Место проведения и участники Конференция пройдет в главном корпусе ФГБОУ ВО «Санкт-Петербургский государственный архитектурно-строительный университет...
СПбГАСУ
Конференция, Вебинар
офлайн, онлайн
бесплатно
28 апреля
Вебинар. Практическое применение nanoCAD BIM Строительство при проектировании здания гражданского назначения
Регистрируйтесь на вебинар и узнайте о том, как эффективно использовать инструменты редактора параметрического оборудования для получения пружинного б...
Центр Программных решений
Вебинар
онлайн
Санкт-Петербург
бесплатно
28 апреля
Вебинар. Проектирование и оформление чертежа детали в nanoCAD Механика PRO на операционной системе Linux
В ходе вебинара мы создадим 3D-модель и её чертеж в nanoCAD Механика PRO на платформе Linux РЕД ОС. В рамках вебинара рассмотрим пошаговый процесс: ...
Магма компьютер
Вебинар
онлайн
Омск
бесплатно
29 апреля
Вебинар. nano360 — новая облачная СОД как центр управления проектными данными
Проектные данные разбредаются по папкам, версии множатся, замечания тонут в переписке? На вебинаре покажем, как единое хранилище и согласование в реа...
Макссофт-24
Вебинар
онлайн
Красноярск
бесплатно
29 апреля
Открытая экспертная сессия Vitro. Концепция СОД 2.0
Команда «Витро Софт» запускает «Открытые экспертные сессии» и приглашает к открытому диалогу о будущем цифровых решений! Первая встреча состоится уже...
Витро Софт
Вебинар
онлайн
Москва
бесплатно
Полный список интересных событий доступен на странице отраслевого календаря