Autodesk Revit Электрика: Продвинутый уровеньСредний

Продвинутый курс по построению электрических сетей в Revit. Рассматриваются настройки программы, создание электрических систем, молниезащита и заземление, плагины, ускоряющие работу, а также продвинутые темы формирования документации и спецификаций.

Курс разработан по заказу научно-производственной компании RUBEZH, одного из лидеров отрасли систем безопасности России и СНГ.
Длительность: 3 часа 26 минут

Создание электрических цепей

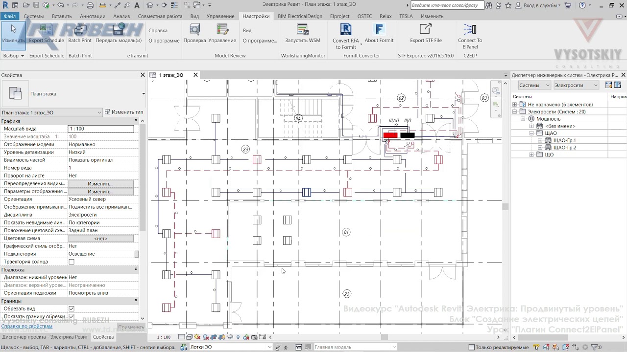
Плагин Connect2ElPanel

Новости и оперативная информация о курсах — на нашем Telegram-канале
Выберите видеосервис:
https://rutube.ru/play/embed/69af5b0737a41bd51112e8a57e9742f0

Описание основных функций плагина для удобного формирования электрических цепей Connect2ElPanel.


Ближайшие события отрасли

Даты Название мероприятия Организатор Тип события Формат Место Стоимость
06 декабря
BIM-Завтрак с Линейкой. ТИМ-образование: я бы в BIM/ТИМ-менеджеры пошел, но где меня этому научат? и ... Итоги года
Что такое BIM-Завтрак с Линейкой? Это линейное продолжение BIM-Завтраков с LEGkO BIM. BIM-Завтрак с Линейкой – это офлайн и онлайн мероприятие, на кот...
Ирина Щеканова и команда "BIM-Завтрак с Линейкой"
Конференция, Вебинар
офлайн, онлайн
Москва
бесплатно
06 декабря
BIM завтрак. Визуализация и рендеры
BIM завтрак — это мероприятие, где собираются заинтересованные BIM специалисты. За чашечкой кофе можно послушать короткие лекции на выбранные темы и п...
LEGkO BIM
Конференция, Вебинар
офлайн, онлайн
Москва, Санкт-Петербург
бесплатно
09 декабря
Семинар. Нововведения в законодательстве и техрегулировании в 2025 году. Строительный комплекс. Практика и проблемы применения. Что нас ожидает в 2026 году? Прогноз экспертов
Строительная отрасль сталкивается с рядом вызовов, связанных с курсом на цифровизацию строительных процессов:        Гот...
ООО «ЦДК «Форум Скиллс», АО «Кодекс» (Техэсперт), СПб ТПП
Конференция
офлайн
Санкт-Петербург
бесплатно
09 декабря
Вебинар. Оформление чертежей без ошибок. Проверенные методики в nanoCAD BIM Строительство
На вебинаре вы узнаете, как эффективно использовать инструменты nanoCAD BIM Строительство для оперативного получения чертежей и спецификаций проектной...
Центр Программных решений
Вебинар
онлайн
Санкт-Петербург
бесплатно
10 декабря
Вебинар. От скана до модели: реверс-инжиниринг деталей машиностроения в nanoCAD Облака точек
Приглашаем специалистов в области геодезии, строительства, машиностроения и специалистов, работающих в сфере инфраструктурного и метрологического мони...
Макссофт-24, Нанософт
Вебинар
онлайн
Красноярск, Санкт-Петербург
бесплатно
10 декабря
Вебинар. Как выстроить прозрачный, быстрый и предсказуемый процесс контроля качества на стройке
Строительные проекты сталкиваются с одними и теми же вызовами: тысячи мелких и крупных нарушений, разрозненная информация, «бумажные» предписания, пот...
Айбим
Вебинар
онлайн
Москва
бесплатно
10 декабря
Вебинар. Эффективное проектирование трасс КНС в Model Studio CS
Партнер-эксперт BolapanSoft приглашает принять участие в вебинаре «Эффективное проектирование трасс КНС в Model Studio CS». Кабеленесущие системы яв...
СиСофт
Вебинар
онлайн
Москва
бесплатно
11 декабря
Вебинар. nanoCAD BIM Строительство: автозаполнение штампов спецификаций в Word c использованием данных проекта CADLib Модель и Архив
На практическом вебинаре разберем: — постановку задачи и трудности реализации; — приемы автоматизации процесса заполнения штампов спецификаций в Word ...
Макссофт-24, Нанософт
Вебинар
онлайн
Красноярск, Санкт-Петербург
бесплатно
11 декабря
Вебинар. 5D Смета – новые возможности версии 6.003
Мы рады пригласить вас на вебинар, посвящённый новым возможностям программы 5D Смета — версии 6.003! Узнайте, как обновления помогут сделать вашу раб...
CSD
Вебинар
онлайн
Москва
бесплатно
12 декабря
Вебинар. BIM-модель → производство → строительство: дорогу осилит идущий. Опыт АО «СтройПанельКомплект»
Продолжаем рассказывать о BIM-жизни в компаниях и приглашаем вас на следующий вебинар из серии! Использование технологии информационного моделировани...
Аскон
Вебинар
онлайн
Санкт-Петербург
бесплатно
Полный список интересных событий доступен на странице отраслевого календаря